Non disponible pour la rentrée 2019/2020
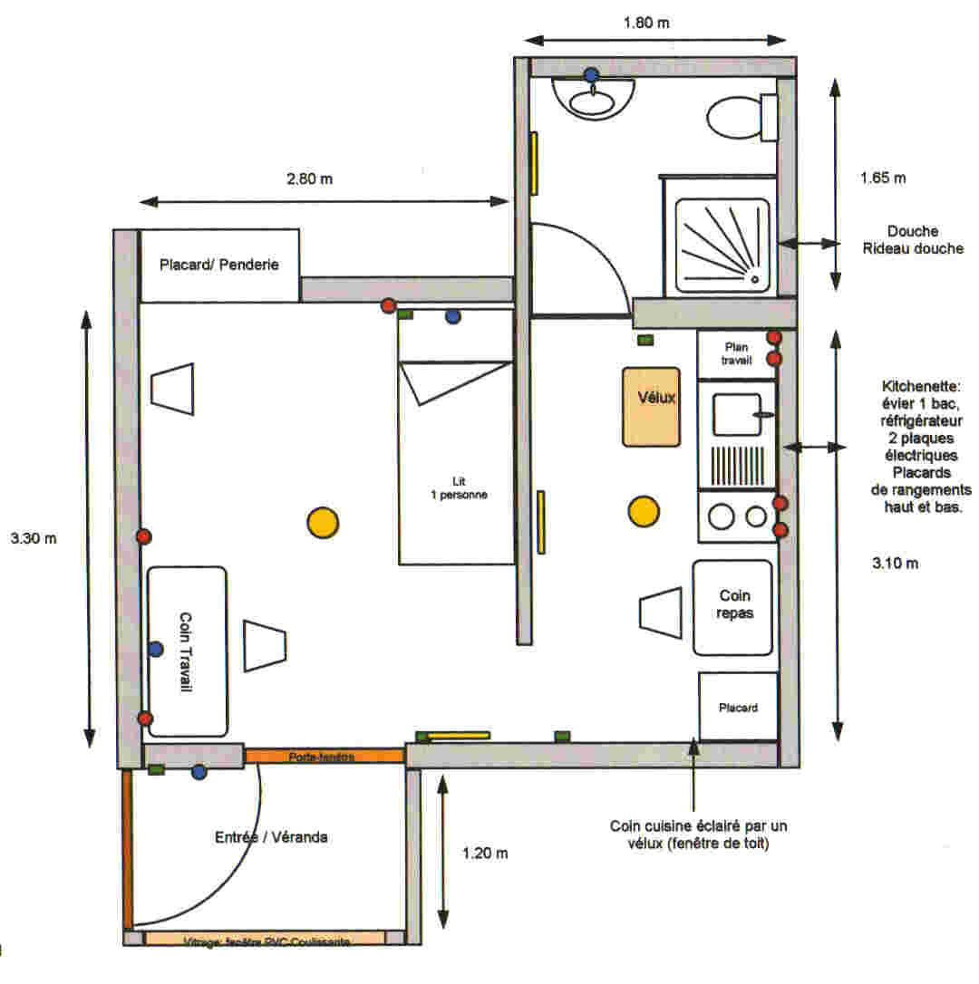
Descriptif du logement meublé étudiant: Le Carré Cosy (21 m²) - Une petite entrée de type véranda. - Une pièce principale avec un clic clac 120X190, matelas confort dunlopillo - Coin bureau, prise TV, prise Téléphone (abonnement non compris ) - Connexion Internet WIFI comprise - Placard penderie. - Un coin cuisine (séparé de la pièce principale) avec plaques vitro céramiques, réfrigérateur, placards, table, chaises et ustensiles de cuisine. - Un cabinet de toilette avec cabine de douche, lavabo, WC. - Chauffage électrique, cumulus, double-vitrage, volets, prise TV et prise téléphone. - Possibilité branchement machine à laver Plan du logement n°2

|